OLDEN SQUARE PRESENTA: piso de 51 m2 construidos en finca de 1900. Es en 3er piso sin ascensor.
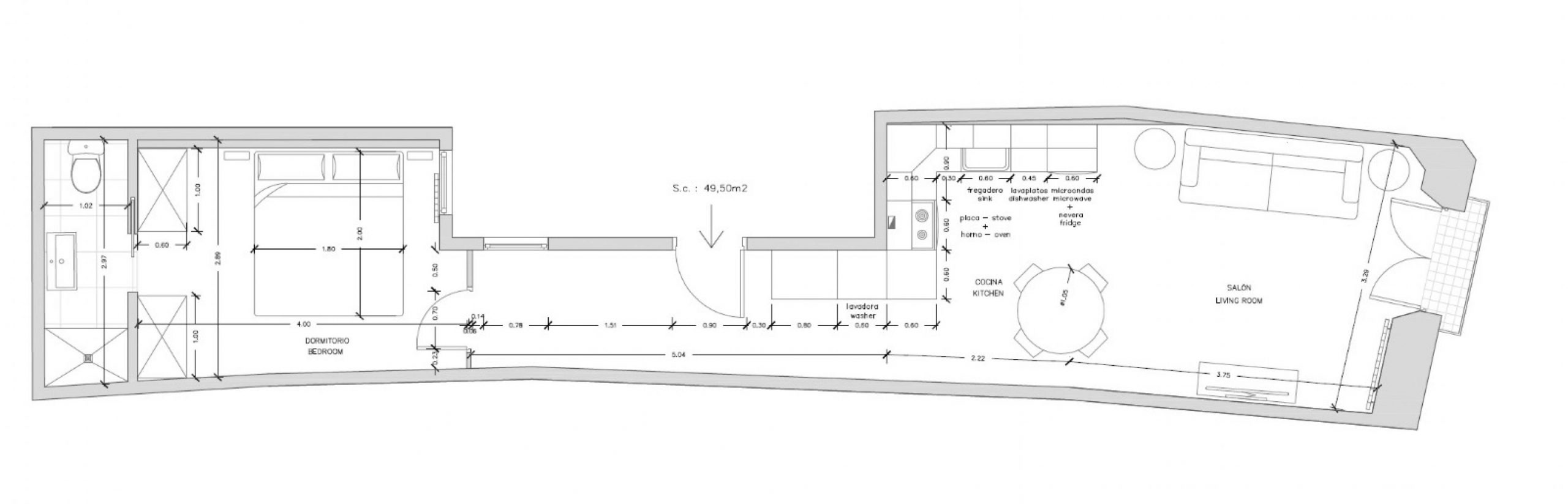
Consta de un luminoso salón comedor con salida a balcón, cocina americana completamente equipada, una habitación doble con armarios, baño completo con ducha, recibidor distribuidor y una pequeña zona de estudio.
Tiene suelos de parquet, techos con volta catalana y paredes de ladrillo visto, lo que aporta carácter a las estancias. Hay aire acondicionado y calefacción.
Ubicado al lado de la iglesia de Santa María del Mar y cercano al Parc de la Ciutadella, en zona comercial, con restaurantes, teatros y tiendas.
Conectado con el resto de la ciudad por medio del transporte público, la parada de metro más cercana es Jaume I (L4) así como de diversas paradas de autobús.
Alquilado en contrato temporal hasta el 9 de noviembre de 2025 por 1.250€ al mes.
Características
Información adicional
51 m² construidos
41 m² útiles
1 dormitorio
1 baño
Balcón
Segunda mano/Buen estado
Año de construcción: 1900
Sur
Certificación energética
Consumo: E (206 kWh/m2 año)
Emisiones: E (35 C02/m2 año)
Plano
Localización
Carrer dels Sombrerers, Barcelona, España























